Квартира в центре Анапы!
Арт. 134322845 Внимание! В продаже очень интересный вари
ант - двухкомнатная квартира в центре Анапы!
С реальным покупателем обсудим торг!
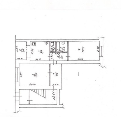
Всего в 15 минутах прогулочным шагом от песчаных пляжей курорта.Комфортная планировка:-Самая удачная планировка во все времена, комнаты на две стороны дома, на простом языке «распашонка».-Изолированные комнаты 15,4 и 12,9 кв. м.-Кухня 8,4 кв. м. с выходом на лоджию 3,4 кв. м.-Раздельный санузел 1,2 и 2,6 кв. м.-Просторный коридор 4,8 и 3 кв. м.Преимущества покупки:-Исторический центр города курорта. Абсолютно все в шаговой доступности.Этот район очень востребованный, развитая инфраструктура, множество зеленых насаждений, дворы утопают в цветах и зелени. Спокойная и беззаботная, в то же время комфортная среда.Центральный рынок и автовокзал в 5 минутах ходьбы. К песочному пляжу, неспеша минут 15. Аптеки, супермаркеты, различные салоны и мастерские, в радиусе пятисот метров.-Общеобразовательная школа и два детских сада в пяти минутах.-Квартира без долгов и обременений. Продажа от собственника, полная сумма в договоре. Любая форма оплаты!-Жилое состояние, не требует капитальных вложений. Есть вся необходимая мебель. Вполне удобный вариант для быстрого заселения.-Сам дом кирпичный, теплый, с хорошей шумоизоляцией. Подъезд закрытый, есть домофон. Автостоянка за шлагбаумом, имеется парковочное место.-Высокий первый этаж. На окнах решетки. Приятным бонусом кусочек земли под окном, где можно самостоятельно для своего удовольствия выращивать цветы, декоративные растения или плодовые деревья, например.Прекрасный вариант, о котором стоит задуматься, не на долго, пока его не выбрал кто -то другой.
Не упустите возможность купить хорошую квартиру по самой привлекательной цене.
Для Вас:Полное юридическое сопровождение сделки.Возможность покупки дистанционно.Помощь в оформлении ипотеки.Мы ценим Ваш выбор и Ваше доверие.Звоните или пишите. Всегда готова ответить на ваши вопросы.Ваш специалист по недвижимости Алена.АН "Адрес: ЮГ" является

























































