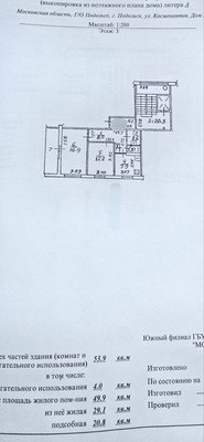
Продается 2к.кв.,
Арт. 134321929 Предлагается к продаже , доля в 2х комнатной квартира порядок пользования получен , в пешей доступности от станции МЦД Подольск! Удобная планировка (комнаты изолированные) , выполнен косметический ремонт , а также, есть застекленная лоджия. Перекрытия железобетонные.В квартире продается 2/3 доли что соответствует большой комнате с лоджией 8кв . КВАРТИРА ПУСТАЯ СОБСТВЕННИКИ НЕ ПРОЖИВАЮТ И НЕ ПРОПИСАННЫ В НЕЙ !!!В шаговой доступности от дома есть вся необходимая инфраструктура: детские сады, школы, парки, сетевые магазины, аптеки, ЖД и Автостанция Подольск. Удобный выезд в любой район города и на Москву. НОТАРИАЛЬНАЯ СДЕЛКА . ВСЕ ВОПРОСЫ ПО ТЕЛЕФОНУ .ТОРГ.
Интернет
Телефон
Спутниковое / Кабельное ТВ
Доступно людям с ограниченными возможностями
Консьерж
Охраняемая территория
Мусоропровод
Газ
Огороженная территория
Домофон
Счетчики воды
Пандус
Двор под шлагбаумом
Двор без машин









































