Склад А класс 4900 кв.м. Коледино
Арт. 134331378 Аpeнда нaпpямую oт cобcтвенникa без комисcий, процeнтов и допoлнитeльных надбавок!
Складской комплекс класса А, площадь 4900 кв.м. (рядом с Wildberries)
Склад расположен в Южном направлении по адресу: Московская область, г. Подольск, д. Коледино, федеральные трассы Симферопольское шоссе, Варшавское шоссе на расстоянии 23 км от МКАД!
- близость до метро Анино, 25 мин.
- МЦД Подольск 15 минут общественным транспортом.
- рядом со складским комплексом расположена автобусная остановка 10 минут пешком.
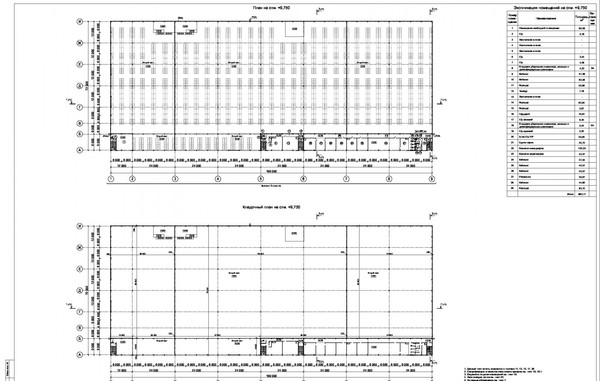
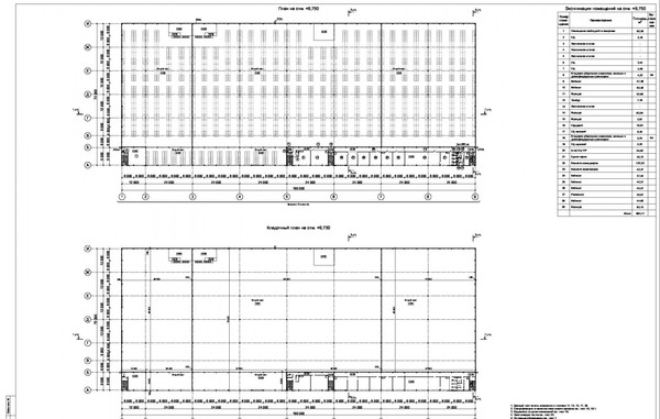
-Технические параметры склада:
Класс: А.
Тип: сухой (+16/+20).
Этажность: 1 эт.
Предлагаемая площадь: 4900 м2.
Год постройки: 2017 г.
Паркинг (грузовые автомобили).
Паркинг (легковые автомобили).
Уровень пола: 1.2 м.
Шаг колонн: 12 х 24 м.
Нагрузка на пол: 5 тонн/м2.
Количество доков: 6 шт.
Рабочая высота потолков: 12,5 м.
Офисные помещения
Столовая
Тип пола: бетонный пол с антипылевым покрытием.
Система пожаротушения: гидранты, спринклерная система
Электричество 170 кВт.
Инфраструктура: парковки для легкового транспорта, грузовиков.
Видеонаблюдение, Охрана 24/7, 2 КПП, СКД.
Звоните, мы оперативно организуем просмотр помещения в удобную для вас дату и ответим на все интересующие вопросы.
В арендную ставку включён, ОПЕКС!
Арендовать склад, аренда склада, склад, фарм склад, фармацевтический склад, арендовать помещение, арендовать промышленное помещение, промзоны, промышленные парки, арендовать помещение свободного назначения, аренда склада Подольск, аренда склада Домодедово , склад А класса























































