Продается дом,
Данный объект вы можете приобрести в ипотеку по субсидированной ставке от 14.3% на весь срок или от 2,01 % на первые два года, что существенно снизит Ваш ежемесячный платеж и сумму переплаты.
Представляем Вашему вниманию уютный дом для круглогодичного проживания в живописном Дмитровском районе, деревня Федоровка, тер.объединения Энтузиаст!
Ваш идеальный уголок природы и комфорта!
О доме:Площадь: 56 кв.м., два этажа. (фактическая площадь дома 87м2)
Материал: Экологически чистый брус 150 с утеплением. Обшивка внутри дома - вагонка, гипсокартон под покраску. Потолки - натяжные.
Планировка: На первом этаже - кухня - гостиная м2. Кухня полностью укомплектована всей необходимой техникой: посудомоечная машина, электрическая духовка, газовая плита.
На втором этаже - Спальня с выходом на балкон и детская комната. Коммуникации: Дом полностью готов для комфортного проживания в любое время года! Подключено электричество. Для водоснабжения - скважина. Отопление осуществляется современным электрокотлом, а для ценителей тепла и уюта установлена печь-камин из состаренного кирпича + теплые полы. Санузел совмещенный, имеется септик.
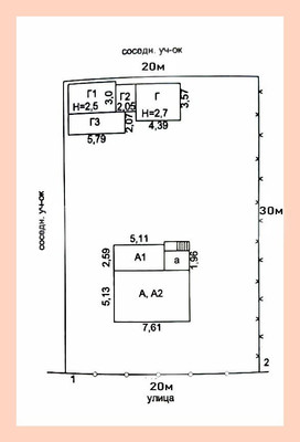
Об участке:Размер: 6 соток, ровный и ухоженный.
Расположение: Участок расположен на границе с лесом — наслаждайтесь свежим воздухом и тишиной!
Удобства: На участке обустроена мангальная зона для приятных вечеров с близкими, летний домик и хозблок для хранения инвентаря. Так же на участке плодовые деревья, туи и сосны.
Безопасность и доступность:На въезде в СНТ установлены автоматические ворота, территория охраняется, обеспечивая ваше спокойствие.
Дорога до самого дома отсыпана асфальтовой крошкой, что гарантирует комфортный подъезд в любую погоду.
Расположение:Всего 12 км до центра Дмитрова, что позволяет быстро добраться до городской инфраструктуры, сохраняя при этом спокойствие загородной жизни.
Арт. 134330201



























