Продается дом,
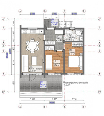
Арт. 134474578 Представляем Вашему вниманию уникальный загородный Дом 80 кв.м!Этот современный дом сочетает продуманную архитектуру, качественные, проверенные временем строительные решения и удобное расположение. Дом построен по индивидуально-разработанному Архитектурному проекту с соблюдением всех технических норм. Дом установлен на надежном свайном фундаменте, с толщиной стенки 3,5 млм, диаметром 108млм и высотой свай 3.5 метра. В строительстве использована продуманная каркасная (финская) технология с элементами скандинавского стиля; использована дву-скатная кровельная система на современных комплектующих от именитой компании с финальным покрытием Grand Line Satin Matt Ral 7024В доме удобное планировочное решение с 2мя просторными изолированными спальнями, большая кухня-гостиная с выходом на просторную веранду, функциональный с/у. В доме уже установлены конвектора с модулем вайфая по технологии "Умный дом" с памятью настроек, на случай планового или внезапного отключения электричества.*Ключевые преимущества:*Большие окна, обеспечивают оптимальную инсоляцию в течение всего светового дня, с видовыми характеристиками на лес и в том числе с ареолом захода солнца в сторону заката.*Изюминка проекта - плоская направляемая эксплуатируемая кровля - где возможно разбить зону электробарбекю или поставить шезлонг с зонтами и приватным Патио! Для тихих уединенных романтических вечеров или кальян-вечеринок *Участок правильной формы, готовый к благоустройству — с организованным пред чистовым Въездом (отсыпан и утрамбован заезд по формуле 10+10+10 песок-гравий/щебень) - дополнительно сохранено пространство - где можно разбить сад или воссоздать зону отдыха!
Лесной эко-поселок Shelkovo Park расположен в окружении реликтового хвойного леса и сформирован по универсальному и актуальному принципу экосистемы, где есть всё необходимое для комфортного проживания за городом.В шаговой доступности для жителей по границе поселка расположена река с благоустроенным пляжем, в граница





























































