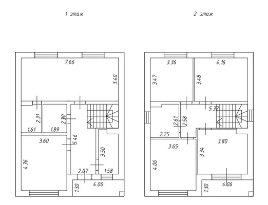
ИЩЕТЕ СОВРЕМЕННЫЙ УЮТНЫЙ СРЕДНЕРАЗМЕРНЫЙ ДОМ В НОВОЙ МОСКВЕ В 20 КМ ОТ МКАД? Тогда наше предложение именно для вас. Продается двухэтажный дом 2023 года постройки площадью 154 м² на участке ИЖС 5 соток. Конструктив стен – пеноблок + облицовка из кирпича. Фундамент ж/б свайно-ростверковый, крыша - гибкая черепица, утепление по скатам 20 см, немецкие окна Rehau. Планировка: 1 этаж: просторная кухня-гостиная, спальня, санузел, гардеробная, холл. 2 этаж: 3 спальни, санузел, холл, балкон. Электричество 15 кВт, скважина, септик, газ по границе. Внутри дома все новое – ремонт, мебель, бытовая техника. Участок правильной формы, огорожен. Установлен навес для автомобиля. Рядом всё необходимое: сетевые продовольственные магазины, школа, детсад, поликлиника, парк для прогулок, фитнесс-клуб, ледовый дворец. Асфальтированный круглогодичный подъезд. До ст. м. «Пыхтино» 10 мин на транспорте, до ст. МЦД «Кокошкино» 12 мин неспешной ходьбы. Удобный выезд на Боровское и Киевское шоссе. Один взрослый собственник. Альтернатива. РЕАЛИЗУЙТЕ ВАШУ МЕЧТУ О СОБСТВЕННОМ ДОМЕ ВМЕСТЕ С НАМИ!
Арт. 134510114
Охраняемая территория
Огороженная территория
Круглогодичный доступ
Телефон
Интернет
Спутниковое / Кабельное ТВ
Гараж
Баня / Сауна
Бассейн
Бойлер
Мансарда
Возможна прописка
Лес
Терраса
Погреб
Душ
Водоем













































