Данный дом возможно приобрести по семейной ипотеке - 6%, так же по субсидированной ставке от 14.3%, что существенно снизит Ваш платеж по ипотеке.
Этот дом в деревне Кончинино (Дмитровский район) Московской области представляет собой отличное предложение для круглогодичного проживания.Основные характеристики:Расположение: 55 км от МКАД по Дмитровскому шоссе, в 2 км от поселка Горшково и 4 км от города Дмитров. Удобный выезд на шоссе.
Участок: 5.36 соток.
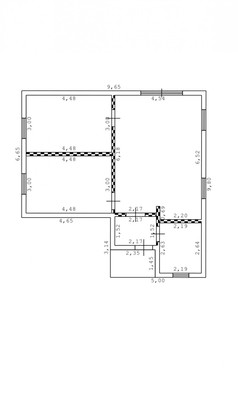
Дом: 71 м², каркасный, подходит для круглогодичного проживания с возможностью прописки. Высота потолков 2,70 м. Планировка включает 2 комнаты по 13.44 м² и просторную кухню-гостиную 30 м². Оснащен большими ПАНОРАМНЫМИ окнами.
Коммуникации: Электричество 15 кВт.
Состояние: Дом готов к проживанию, продается без мебели, что дает возможность реализовать собственный дизайн.
Преимущества локации:Природа: Тихое место с чистым воздухом, рядом лес, водоемы (Синьковская плотина с пляжем, Карповское водохранилище), грибные и ягодные места.
Инфраструктура: В пешей доступности сетевые магазины (Дикси, Пятерочка, Магнит), амбулатория, ФОК «Горшково», детский сад, школа. В городе Дмитров (4 км) доступна вся необходимая инфраструктура.
Развитие: В скором времени ожидается открытие новой школы на 1100 мест, 4 детских садов и поликлиники.
Это идеальный вариант для тех, кто ищет комфортное жилье в экологически чистом районе с развитой инфраструктурой и удобной транспортной доступностью.
Арт. 134551202
Охраняемая территория
Огороженная территория
Круглогодичный доступ
Телефон
Интернет
Спутниковое / Кабельное ТВ
Гараж
Баня / Сауна
Бассейн
Бойлер
Мансарда
Возможна прописка
Лес
Терраса
Погреб
Душ
Водоем





































