Комфортный дом для большой семьи
Продаётся просторный двухэтажный дом в Емельяново, где каждая деталь продумана для вашего уюта и безопасности.
Наш дом расположен на участке в 10 соток, относящемся к категории земель населённых пунктов, с разрешённым видом использования для ЛПХ. Здесь вы сможете создать своё личное подсобное хозяйство, наслаждаясь преимуществами собственного дома и приусадебного участка.
Техническое оснащение дома на высоте: электричество 15 кВт, 380 В, собственная скважина, отдельный ЖБИ септик на 6м³. Это гарантирует вам комфорт и надёжность в использовании всех систем жизнеобеспечения.
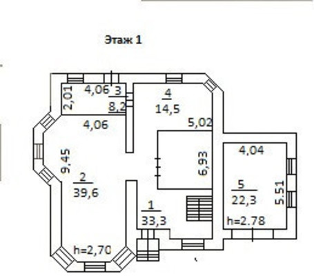
Внутреннее пространство дома идеально подходит для большой семьи и приёма гостей: на первом этаже расположена большая столовая-гостиная и кухня, а на втором этаже – три просторные комнаты с окнами на запад и север. Свайный утеплённый фундамент, кирпичная кладка для стен, монолитные перекрытия гарантируют отличную тепло- и звукоизоляцию.
Дополнительные удобстварадиаторы с терморегуляторами на первом и втором этажах,
прочная лестница из массива дерева,
два санузла,
гараж.
Преимущества местоположения и инфраструктуры: всего 25-30 минут на автомобиле до ТРЦ «Планета» или центра города, 10 минут до аэропорта и прекрасного места отдыха – озера Семирадское. В поселке есть школы, детские сады, супермаркеты. Всё для комфортной жизни.
Полная юридическая поддержка и выгодные условия по ипотеке: безопасная сделка, застрахованная на 55 млн. рублей, юридическое сопровождение на всех этапах. Сотрудничество с банками позволяет предложить вам более низкие процентные ставки, чем в банке.
Один взрослый собственник, вся сумма в договоре.
Свобода в выборе: Покажем дом в любое удобное для вас время, дом на ключах!Звоните, пишите, задавайте вопросы – выберите дом своей мечты с нами!
Арт. 134677086

















































