Квартира-студия
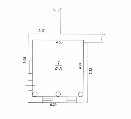
интересный вариант для студии. свой вход. все центральные комуникации. либо как офис итд. помещение пристройка со своим отдельным входом. Доступ 24/7, круглосуточно, место под вывеску. Помещение квадратной формы. Потолки высота 3.5 м. Есть электричество, отопление, водоотведение и водоснабжение. Под любой вид деятельности (склад, магазин, салон красоты, пункт выдачи, склад, магазин и т.д.) или проживание.
Интернет
Телефон
Спутниковое / Кабельное ТВ
Доступно людям с ограниченными возможностями
Консьерж
Охраняемая территория
Мусоропровод
Газ
Огороженная территория
Домофон
Счетчики воды
Пандус
Двор под шлагбаумом
Двор без машин























