Е4 в 15 минутах от центра
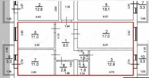
Арт. 134387811 Просторная квартира бабочкой, 2 изолированные спальни, 2 смежные комнаты жилая и комната-кухня-(17 метров) . 2 застекленных балкона (на кухне и в спальне).Прекрасное пространство для большой семьи в благоустроенном современном районе в 15 минут на машине или автобусе от центра города.В пешей доступности школа (200м), Мега Ашан, Леруа, Кинотеатры, Много детских площадокХорошая транспортная доступностьМного детских площадок
Интернет
Телефон
Спутниковое / Кабельное ТВ
Доступно людям с ограниченными возможностями
Консьерж
Охраняемая территория
Мусоропровод
Газ
Огороженная территория
Домофон
Счетчики воды
Пандус
Двор под шлагбаумом
Двор без машин











