Арт. 134837734 Всем доброго дня! Продается двухкомнатная квартира по уступке права требования в премиальном жк SLAVA! Лучший корпус, хороший видовой этаж, окна квартиры выходят на противоположную сторону от Ленинградки, на город (не во двор и не на шумную Ленинградку).
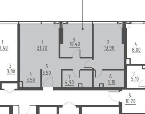
Откройте дверь в пространство, где продуман каждый метр: просторная квартира 63 метра создана для тех, кто ценит стиль, комфорт и безупречное качество. Высокие потолки и большие окна наполняют помещение воздухом и естественным светом. Функциональная планировка позволяет организовать зоны отдыха, работы и приёма гостей без потери свободного пространства. Здесь легко создать уголок для утреннего кофе, зону для творческих вечеров или пространство для семейных встреч.
SLAVA — это не просто адрес, а статус. Закрытая территория, круглосуточная охрана, подземный паркинг и консьерж-сервис делают жизнь безопасной и удобной. Рядом — парки, магазины премиум‑класса и лучшие кафе города. Это сообщество единомышленников, безопасность, престиж и всё необходимое рядом. Прогуляться по парку, зайти в фермерский магазин или устроить пикник у озера — всё в нескольких минутах от дома. Ваш новый дом ждёт вас — там, где начинается настоящая жизнь.
Готовы к сделке и ждем вас :)

















