Современный дом и видовой участок
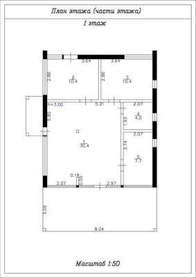
Арт. 134343393 Современный дом с панорамным остеклением, камином и благоустроенным видовым участкомПредлагается к продаже одноэтажный жилой дом с качественным интерьером и функциональной планировкой в КП Холмогорье. Планировка:Гостиная — 30,4 м² с зоной отдыха
Три изолированные комнаты — две по 10,4 м² и 7,7 м2
Санузел - 4,6 м²
Высота потолков — 3,0 м
Особенности интерьера:Панорамное остекление с видом на участок
Современный ремонт в скандинавском стиле
Кухня выполнена в минималистичном дизайне: функциональная рабочая зона, встроенная техника и тёплая деревянная столешница делают её не только красивой, но и удобной для повседневной жизни.
Установлена печь-камин
Обеденная зона с естественным освещением
Уютная лаунж-зона с креслами
Преимущества:Отдельного внимания заслуживает терраса — уютное пространство с мягкой мебелью, где можно наслаждаться утренним кофе, солнечными днями и тёплыми вечерами в кругу друзей (24 м²)
Участок с зоной барбекю
Светлый, теплый и полностью готовый к проживанию дом
Теплый пол по всему периметру.
Электричество 15 кВт .
Септик.
Круглогодичное центральное водоснабжение.
Удачное зонирование пространства
Дом идеально подходит как для круглогодичного проживания, так и в качестве загородного дома для отдыха.Всего 25 минут от КАД. Рядом магазины, кафе, аптека, школа.
Готовы организовать показ

































































