Продается дом,
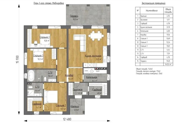
Арт. 134903760 СОBРЕМЕННЫЙ ДОМ 142м² на Земельном участке 10 сот.Семейная ипотека 6% ПЛАНИРОВКА:- Просторная кухня-гостиная 31,4 кв.м.- 2 гардеробные- 3 спальные комнаты- отдельная котельная- 2 с/у- Крыльцо и тeppaсa
КОНСТРУКТИВ ДОМА:- Облицовочный кирпич гиперпрессованный-влагостойкий- Керамический кирпич 2.1НФ KEТРА- Утеплитель каменная вата TЕХHOHИKOЛЬ 10 см- Фундамент марки- 350М- Высота потолков: 3 м- Энергосберегающие окна с пятикамерным тройным стеклопакетом- Металлическая дверь с терморазвывом- Крыша металлочерепица
УЧАСТОК:- Правильной прямоугольной формы, без уклона- Инженерно-геологические изыскания (геология)- Участки в ассортименте.
Рядом: Сухая река Кадышево Северный ШИгали Озерный
Охраняемая территория
Огороженная территория
Круглогодичный доступ
Телефон
Интернет
Спутниковое / Кабельное ТВ
Гараж
Баня / Сауна
Бассейн
Бойлер
Мансарда
Возможна прописка
Лес
Терраса
Погреб
Душ
Водоем

















