ГОТОВЫЙ АРЕНДНЫЙ БИЗНЕС(ГАБ)Помещение в собственности!!!Ключевое преимущество: Первая линия домов! Помещение выходит прямо на Люблинскую улицу, напротив — Люблинский рынок.· Проходимость: Очень высокая за счет интенсивного автомобильного и пешеходного трафика.
Парковка:· Рядом с помещением организована бесплатная парковка для клиентов и сотрудников.Есть два входа: отдельный с улицы и запасной со двора.
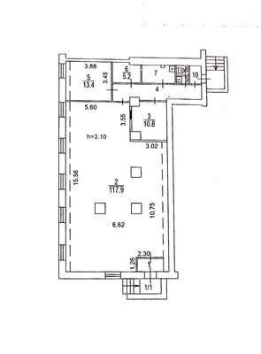
Характеристики помещения:· Общая площадь: 170 кв. м.· Планировка: Состоит из 10 изолированных помещений, что идеально для зонирования (торговый зал, склад, административные кабинеты, комната отдыха).· Коммуникации: В наличии «мокрая точка» (подведена вода и канализация).· Входы: Два входа — парадный с улицы для клиентов и запасной со двора для удобной разгрузки товара.
Помещение продается вместе с действующим бизнесом ИЛИ как объект недвижимости без бизнеса.· Готовая, успешная аптека с наработанным клиентским потоком.· Универсальная планировка подходит для других видов бизнеса: магазин продуктов, бытовой химии, салон связи, кафе и др.
Почему это выгодное предложение?· Раскрученное место с высоким трафиком.· Готовый бизнес с немедленным выходом на доход.· Универсальное помещение с двумя входами и всей необходимой инфраструктурой.
Возможно использовать как пассивный доход или открыть собственный бизнес.ЗВОНИТЕ!
Арт. 134835641
Ремонт за счет владельца
Возможность менять провайдера
Первая линия
Ресторан
Фитнес
Банк
Банкомат
Супермаркет
Арендные каникулы
Интернет
Доступ 24 часа
Видео-наблюдение
Охраняемая территория
Контроль доступа
Есть оборудование
Отдельный вход

































