Продам трехкомнатную (3-комн.) квартиру, Авиационная ул, 79, Москва г
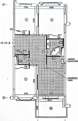
Код объекта: 2145141.<br>Трёхкомнатная квартира в монолитной новостройке 2002 года.<br>Общая площадь квартиры составляет 120,7 кв. м, из которых 26,4 кв. м занимает кухня — гостиная.<br>Три изолированные комнаты с площадями 16,7 кв. м, 21,3 кв. м и 19 кв. м, высокие потолки в 3 метра.<br>Лоджия 12.5 кв. м. <br>Квартира находится на 6 этаже.<br>Окна выходят как на Москва-река, так и во двор.<br>Не упустите возможность стать обладателем этой прекрасной квартиры.<br>Звоните прямо сейчас, чтобы узнать больше и записаться на просмотр.<br>Мы гарантируем безопасную сделку и юридическую поддержку нашим Клиентам. Поможем одобрить ипотеку с сниженной ставкой.
Интернет
Телефон
Спутниковое / Кабельное ТВ
Доступно людям с ограниченными возможностями
Консьерж
Охраняемая территория
Мусоропровод
Газ
Огороженная территория
Домофон
Счетчики воды
Пандус
Двор под шлагбаумом
Двор без машин





















































