Продам трехкомнатную (3-комн.) квартиру, 4-й Подбельского проезд, 2к1, Москва г
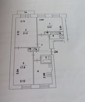
Код объекта: 2144762.<br>Продаётся 3-комнатная квартира<br> <br>Просторная квартира в зелёном районе Москвы рядом с метро и парками<br> <br>Если вы ищете квартиру для жизни, где сочетаются тишина, развитая инфраструктура и удобный выезд в центр — это тот самый вариант.<br> <br>О доме и истории места<br> <br>Дом расположен в районе Богородское (ВАО) — одном из старейших районов Москвы с богатой историей.<br> <br> Район известен ещё с XVI века, а позже здесь располагались дачи и жили известные деятели культуры. <br> <br>Сам проезд получил название в 1954 году в честь революционера Подбельского — район формировался как уютная жилая среда для сотрудников связи.<br> <br>Характеристики дома<br> <br>Год постройки: 1974<br>Этажность: 9 этажей<br>Тип дома: кирпичный (индивидуальный проект) <br>Несколько подъездов, лифты<br>Дом в хорошем техническом состоянии, не аварийный<br> <br>Такие дома ценятся за:<br>— тёплые стены<br>— хорошую шумоизоляцию<br>— комфортную плотность застройки<br>— проверенные временем планировки<br> <br> Транспортная доступность<br> <br>Метро «Бульвар Рокоссовского» — ~10–11 минут пешком<br>МЦК «Бульвар Рокоссовского» — около 15 минут <br> <br>Также рядом:<br>— трамвайные и автобусные маршруты<br>— удобный выезд на крупные магистрали<br> <br>До центра Москвы — 15–20 минут<br>Отличная логистика без перегруженных пересадок<br> <br>Инфраструктура — всё для жизни<br> <br>Район полностью сформирован — здесь не нужно «ждать развития»:<br> <br>Школы и детские сады рядом с домом<br>Поликлиники (взрослая и детская)<br>Банки, аптеки, магазины, пункты выдачи<br>Фитнес, спортплощадки и секции<br> <br>В пешей доступности:<br>— Преображенский рынок с свежими продуктами<br>— сетевые супермаркеты<br>— кафе и бытовые сервисы <br> <br> Окружение и атмосфера<br> <br>Главное преимущество — зелёная Москва без ощущения “каменного мешка”:<br> <br> Рядом:<br>— парк Сокольники<br>— Лосиный остров<br>— прогулочные зоны вдоль Яузы <br> <br>Тихие дворы<br>Много зелени<br>Детские и спортивные площадки<br> <br>О квартире (пример упаковки — можно адаптировать под твою)<br> <br>— Удобная распашная планировка<br>— Изолированные комнаты<br>— Окна на две стороны<br>— Возможность перепланировки (несущие стены по периметру)<br>— Светлая и тёплая квартира<br>— Есть места для хранения<br> <br>Почему это выгодная покупка<br> <br> Метро + МЦК в пешей доступности<br> Зелёный район рядом с парками<br> Ликвидная трёхкомнатная планировка<br> Подходит для семьи и аренды<br> Стабильный рост стоимости района<br> <br>Итог<br> <br>Это не просто квартира — это:<br>- комфортная жизнь в Москве<br>- спокойный район без суеты<br>- выгодный актив с потенциалом роста<br> <br>Звоните — покажу квартиру и помогу принять лучшее решение.

























