Продается дом,
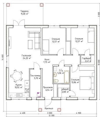
Арт. 135060402 Планитуется строительство Дома 100 кв.м + Участок 8,7 соток в прекрасной локации с потрясающим видом на город.Цена указана в ипотеку(участок+дом).За наличный расчет будет скидка.Хорошие подьездные пути, радом остановка, школа в 10 минутах ходьбыСтроительство завершиться в сентябре 2026 года.Гарантия на дом 5 лет.Преимущества дома:— продуманная планировка: три отдельные комнаты и просторная кухня-гостиная с выходом на террасу;— родительская комната и с собственным санузлом и гардеробной.— ровный участок земли правильной формы, на котором можно реализовать любые дизайнерские идеи,построить Гараж, Баню, Чан и т.д.;— шикарный вид с террасы на городФинансовые условия:— скидки при оплате за наличный расчёт;— помощь в оформлении ипотеки под 6%— индивидуальные условия и подход.Не откладывайте решение о покупке — звоните прямо сейчас, и я оперативно организую показ и расскажу техническую часть проэкта!Можем построить по вашему проекту или проекту из нашего каталога.Ваш будущий дом ждёт вас!







