Двухуровневый пентхаус с террасой
Продаем двухуровневый пентхаус 95 м² с террасой 18 м², второй свет, вид на Москва сити, Редкий формат для Академического района: двухуровневый пентхаус на последнем этаже с террасой, камином, вторым светом и потолками 6,7 м.
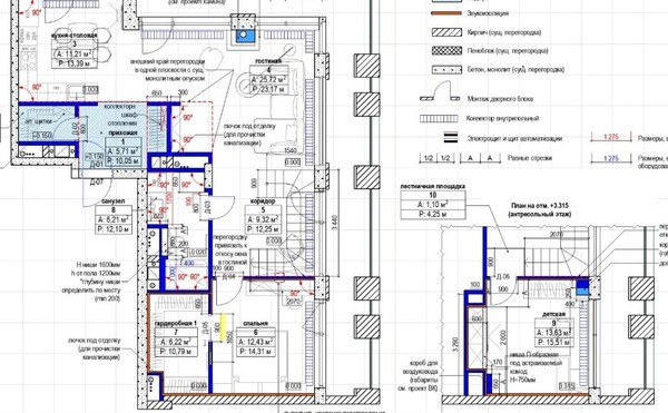
Квартира продаётся без отделки, при этом есть согласованный с МосЖилИнспекцией (МЖИ) проект планировки и инженерии — можно сразу выходить в реализацию без этапа проектирования.
Планировка и формат
Общая площадь — 95 м² Терраса — 18 м²
Формат квартиры особенно логичен и удобен:— для семейной пары без детей— для пары с одним ребёнком
Нижний уровень:— большая кухня-гостиная с камином — отдельная спальня- гардеробная- с/у- кладовая
Верхний уровень:— комната под детскую / кабинет / гостевую
Ключевые преимущества
— последний этаж— второй свет— потолки 6,7 м— панорамные окна Schuco— вид на две стороны, включая сторону Москва сити— терраса по периметру— возможность установки дровяного камина (предусмотрено проектом)— согласованный дизайн-проектВажно:часть изображений — это визуализации по согласованному с МЖИ проекту, не текущий интерьерО доме
ЖК бизнес-класса «Новочерёмушкинская 17»— сдан в 2020 году— закрытый двор без машин— подземный паркинг— коммерческая инфраструктура в доме— частный детский сад
До метро Академическая ~10 минут пешком
Сделка
— свободная продажа— документы готовы, полная стоимость в договоре— ипотека возможна
Отдельно предлагаются на минус первом этаже:— 2 удобных машиноместа, рядом друг с другом— кладовая рядом с лифтом из квартиры
Транспортная доступность:в любую часть города без проблем: 10 минут пешком до станции метро Академическая на автомобиле удобный выезд на ул. Дмитрия Ульянова, Профсоюзную улицу, Нахимовский и Севастопольский проспекты, до ТТК и Садового кольца На автомобиле:10 мин до ТТК.15 минут до Садового кольца 25 минут до Москва Сити.До престижных ВУЗов -МГУ, МФЮА, Университет правосудия 15мин на транспорте Свободная продажа.Запишитесь на просмотр!
Арт. 129028225

































































