Светлая, тёплая, уютная квартира
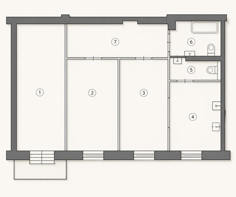
77,8 м² продуманного пространства в кирпичном доме. Дизайнерский ремонт, потолки 3 м, естественный свет в течение дня. Всего 5 минут пешком до метро «Дубровка».Евротрёхкомнатная квартира с дизайнерским ремонтом в кирпичном доме, расположенном в Южнопортовом районе Москвы.Пространство организовано в современной логике — с чётким функциональным зонированием и продуманной геометрией помещений. Планировка включает кухню с обеденной зоной, две комнаты и дополнительное пространство, позволяющее адаптировать квартиру под различные сценарии проживания.Высота потолков — 3 метра, что формирует ощущение объёма и открытого пространства. Окна ориентированы на улицу, обеспечивая естественное освещение в течение дня. Предусмотрен балкон.В квартире выполнен комплексный дизайнерский ремонт: использованы качественные материалы, обновлены инженерные коммуникации, реализованы современные сценарии освещения и система кондиционирования. Пространство продумано с точки зрения комфорта повседневной жизни.Дом кирпичный, 1958 года постройки, прошёл капитальный ремонт. Закрытая дворовая территория с контролируемым въездом, оборудована детской и спортивной площадками.Локация формирует дополнительную ценность объекта. Южнопортовый район — сложившаяся городская среда с развитой инфраструктурой и удобной транспортной доступностью:метро «Дубровка» — 5 минут пешком
в районе представлены школы и детские сады
работают поликлиники и медицинские учреждения
магазины, торговые центры и объекты повседневного сервиса
удобная транспортная связность с другими районами города
Расположение сочетает близость к центральной части Москвы и комфорт сформированной городской среды.Квартира подойдёт для покупателей, которые ценят продуманную планировку, качество ремонта и удобное расположение у метро.Свяжитесь для получения дополнительной информации и организации просмотра.
Арт. 132690066





























