Найти
Продается студия,
Авиаторов Балтики пр-кт, 15
5 650 000
1 комнат. Общая площадь 22,2 м2. Этаж 7 из 24. Тип здания Монолит. Арт. 132381035 В продаже студия 22.2 м2,+ утепленная лоджия 6 м2, расположенная на 7 этаже по адресу улица.Авиаторов Балтики д. 15". От метро "Девяткино" 8 мин.пешком. ▌ Преимущества квартиры:— полностью оборудованная мебелью и качественной техникой в том числе посудомоечной машинкой, заезжай и живи — большая утепоенная лоджия с теплыми полами, оборудованна под рабочий кабинет- Просторная и светлая студия, удобная для обустройства интерьера и комфортного проживания.- Высокий этаж обеспечивает максимальное количество солнечного света, ▌ Окружение и инфраструктура: - Двор благоустроенный: оборудованы детские и спортивные площадки.- Чистый подъезд, доброжелательные соседи , 4 лифта, включая грузовой.- Близкое расположение станции метро Девяткино (всего 8 минут ходьбы).- Возможность быстро добираться до КАД и железнодорожного вокзала Девяткино для поездок на природу.- В округе находится детский сад, школа, а также разнообразные сервисы и заведения для удобства жителей: аптеки, магазины, салоны красоты, фитнес-центры и многое другое. для просмотров звоните, договоримся о времени.прямая продажа, один взрослый собственник, без обременений, никто не прописан
Квартира в элитном доме
Ленина пр-кт, 47
12 000 000
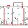
3 комнат. Общая площадь 122,9 м2. Этаж 3 из 9. Тип здания Монолит. Арт. 132394320 Продается трехкомнатная квартира 122,9 кв. м. на третьем этаже в центре города, по адресу: пр-т Ленина дом 47.Дом монолитный, 11 этажный, одно подъездный. Имеет: лифт, мусоропровод.Со стороны подъезда в коридор на 2 квартиры установлена тамбурная дверь с замком и сигнализацией. Входная дверь в квартиру двойная. Первая имеет хороший класс защиты, вторая - межкомнатная. В прихожей установлен встроенный шкаф, электро-щитовая, обогрев пола, имеется вход в один из санузлов. На кухне: встроенная мебель, холодильник, вытяжка, плита с духовым шкафом, посудомоечная машина, установлен обогрев пола. Из кухни есть выход на лоджию. Лоджия утеплена, стоят стеклопакеты, есть свет.Зал имеет два окна, выходящие на восточную сторону, и большую распашную входную дверь. Установлены: встроенный электрический камин, кондиционер, мебель.В спальной комнате имеется большое окно на восточную сторону, а также выход на маленький «французский» балкон, установлены встроенный шкаф и кондиционер.Маленькая комната имеет два окна на северную сторону. Встроенная мебель рассчитана на двух детей. В комнате установлен кондиционер.В проходном коридоре установлена напольная подсветка, которая работает от датчика движения в темное время суток.В квартире имеется два санузла с обогревом пола. В одном установлены стиральная машина и душевая кабинка, во-втором - джакузи, биде. Объект полностью готов к продаже.Долгов обременений нет.Прозрачная история.Один собственник. Рассмотрим все виды оплат!
Новоселье не Девяткино.
Невская ул, 5/7
6 900 000
1 комнат. Общая площадь 46,5 м2. Этаж 4 из 8. Тип здания Монолит-кирпич. Арт. 132153962 По ценам его уместно сравнивать с Девяткино.Но я бы выбрал Новоселье.Девяткино вызывает постапокалиптические ощущения, а Новоселье, наоборот, воспринимается именно как новое селение!Это отдельно взятый пригородок: как будто курорт. Такое ощущение складывается, когда идешь по новым просторным улицам. Много маленьких магазинчиков — привычных, но попадаются и новые, каких не встретишь в городе.Вокруг — поля и садоводства. Много транспорта в разных направлениях, до станции метро «Ветеранов» ехать примерно 30 минут.Квартира в доме на углу широких улиц, с уютным двориком и приятным функционалом на первом этаже.Выход из парадной в обе стороны — на улицу и во двор. На улице справа на первом этаже детский сад. Веселое пространство для детишек, а слева — семейный бар. Вечером можно зайти выпить пива или поужинать. В другую сторону — выход в сквер. Во дворе — тихий уголок: скамейки, качели, молодые ёлки. Летом приятно посидеть в тени с книжкой (или теперь, скорее, со смартфоном), вглядываться в экран, раскачиваясь на качелях. А через сквер можно пройти в пироговый дворик.В парадной грузовой лифт. Четвертый этаж. Большой коридор. Квартира посередине. Без отделки: трубы заведены, розетки установлены.Осталось доделать ремонт по своему вкусу.Спальня с интересным «французским балконом». Большая кухня-гостиная.В отличие от большинства новостроек с электроплитами, здесь — газ.Окна выходят на улицу, балкон застеклен в пол. Без балкона, площадь 41.5 но тут, в районе, многие, почти все квартиры в рекламе, площадь указывают вместе с балконом.Один взрослый собственник. Быстрый выход на сделку.
Продается 2к.кв.,
Ленинградская ул, 9
5 200 000
2 комнат. Общая площадь 57,7 м2. Этаж 2 из 5. Тип здания Панель. Продам двухкомнатную квартиру улучшенной планировки в пос. Терволово, ул.Ленинградская, д.9. Самый лучший дом в поселке, квартиры такой планировки продаются здесь крайне редко. Дом 1992 г.п., панель, удобный 2 этаж. Просторная холловая квартира: ОП – 57,7 кв.м, кухня – 8,5 кв.м., комнаты - изолированные: 17,5+13,5 кв.м., лоджия. Все коммуникации центральные. Санузел раздельный, ванна поперёк (есть место для стиральной машины). Большая кладовая, которую можно оборудовать под гардероб. Установлены стеклопакеты, домофон. Плюсы: просторный холл 11,6 кв.м., широкая лоджия, большая кладовая, место для стиральной машины в ванной, удобный 2 этаж, закрытый тамбур на две квартиры. Квартира под ремонт! У вас есть уникальная возможность сделать всё «под себя». В поселке очень развитая инфраструктура: школа, д/сад, почта, Сбербанк, амбулатория, кафе, церковь, много магазинов (в т.ч. Пятёрочка и Магнит). Для детского досуга: Дом культуры с секциями и кружками, библиотека, каток, стадион, хорошие детские площадки. Для прогулок: живописный водоем. Для ищущих работу рядом с домом - много разных предприятий. Удобное регулярное транспортное сообщение с Питером: до метро Проспект Ветеранов 50 минут на маршрутке 632, до Красного Села 30 минут на маршрутке 547, до Гатчины 40 минут на автобусах 533 и 518. До Таллинского шоссе 2 км (Кипень), до КАД 25 км. Три взрослых собственника. Прямая продажа. Арт. 132206715
Просторная однокомнатная квартира
Екатерининская ул, 9
6 050 000
1 комнат. Общая площадь 39,9 м2. Этаж 1 из 18. Тип здания Монолит. Арт. 132029003 Про локацию:Развитый район, 19 мин пешком до метро ( 1,5 км). Далее на метро можно доехать за 25 мин до Невского Проспекта. В 15 мин пешком уже построена новая поликлиника и торговый центр с кинотеатром и фитнес клубом.Про квартиру :1 этаж, под окнами спокойно, нет лавочек, тихо , высокий потолок 3 м, просторная комната 16 кв.м, гардеробная 5 кв.м и санузел 5 м. Общая площадь по егрн 39,9 кв. мКомната с 2 окнами, есть прекрасная возможность убрать стену между комнатой и гардеробом (она не несущая) , поставить перегородку и в вашем распоряжении будет 2 отдельные комнаты ( каждая с окном). Балкона нет. В ванной комнате и коридоре нужно доделать напольное и настенное покрытие по своему вкусу, затраты на ремонт уже включены в стоимость ( так как стоимость за такую площадь ниже рынка на 700-800 тыс) .Кухонный гарнитур с техникой, стол и стиральная машина остаются новому собственнику.Документы:Квартира без обременений , юридически чистая, срок владения более 5 лет, полная стоимость в договоре, Записывайтесь на просмотр, покажем практически в любой день.
Дешевле, чем у застройщика!
Виллози гп, Ломоносовский р-н
4 695 000
1 комнат. Общая площадь 21,2 м2. Этаж 4 из 14. Тип здания Монолит. Арт. 131937296 Квартира студия комфорт-класса 21,23 м² с ремонтом и частично мебелью по цене НИЖЕ ЗАСТРОЙЩИКА ‼️ Срочная продажа В корпусе 1.1 ЖК «Квартал Торики». Секция - 3, Этаж - 4 (всего - 14). 
—Жилая площадь - 12,86 м² —Прихожая - 4,31 м² —Ванна - 3,29 м² —Высота потолков - 2.78 м , витражное остекление.—Тип дома - ЖБ/Монолит—Полная чистовая отделка. Срок сдачи 4 квартал 2026 года. Квартира доступна к покупке по переуступке права требования от физлица. Жилой комплекс «Квартал Торики» - граница Санкт-Петербурга. Комфортное место для вашей семьи. Голубое небо, атмосферные прогулки и все необходимое находится рядом: До центра Санкт-Петербурга — 40 минут на авто . 20 минут до метро «Проспект Ветеранов» - рядом три автобусные остановки.Всего 15-20 минут пешком до Гореловского озера для прогулок и пикников. КАД - 5 минут Рядом — гипермаркет «Окей», «Лемана ПРО», «Fashion House Outlet Таллинское» ️ и ещё 150+ объектов инфраструктуры.
️Магазины, кофейни, пункты выдачи на первых этажах домов
️Современный спортивный клуб Fitness Houseв пешей доступности
️Прогулочные и беговые маршруты по благоустроенной территории

️Центральный парк Красного Села - 10 минут на авто
️Полежаевский, Южно-Приморский парки - 20 минут на авто
️Резиденции Петергоф, Гатчина и Павловскв - 30 минутах на авто
️Гореловское озеро с пляжем - 15–20 минут пешком Полежаевский и Южно-Приморский парки подходят для выгула собак, а набережная канала реки Дудергофки - для велосипедных прогулок. В квартале откроются школа на 525 мест и 2 детских сада на 160 и 180 мест. Утро можно начать в кофейне на первом этаже, а вечером - закупить продуктов. Дворы с уютными «лесными гостиными» закрыты для посторонних — дети на игровых площадках будут в безопасности. На территории есть 3 многоуровневых паркинга. Входы в подьезды без ступенек, предусмотрены кладовые и помещения для колясок и велосипедов.
Квартира-студия 27 м², 11/12 эт
Красносельское ш, 1к1
5 150 000
1 комнат. Общая площадь 27,0 м2. Этаж 11 из 12. Тип здания Панель. Арт. 131916166 Уникальное предложение! Продается видовая и уютная квартира - студия в современном жилом кoмплексe . О КВАРТИРЕ:Отличная планировка, идеальное пространство для уединения и отдыха.Расположена на 11 этаже 12-этaжного дома.Общей площадью 24,4 кв. м, с кухней в большой комнате правильной формы + застекленный Балкон 5,1 кв.м.Прихожая со шкафом, в котором поместится все необходимое.Квартира очень солнечная c панорамными окнами и тихая. Очень теплая зимой и прохладная летом.Уютная зона Балкона позволит насладится приятными вечерами.Все продумано до мелочей.На этаже соседи все очень порядочные люди.Чистая отремонтированная парадная. О ДОМЕ:Панельный дoм 2014 г.п.Закрытый двор сделает проживание максимально комфортным и безопасным.В доме нет перебоев с водой, электричеством, лифтами.Надежная управляющая компания. ИНФРАСТРУКТУРА:Район полностью сформирован, здесь вся инфраструктура в наличии, а так же много зелени.В непосредственной близости остановка общественного транспорта.До метро (Кировский завод/Автово) 15 минут на автомобилеДо выезда на КАД 5 минут на машине, это позволит быстро доехать до любой точки города!Достаточно пространства для парковки автомобиля! ЛЕГКО КУПИТЬ: *Безопасный и быстрый выход на сделку с агентом *Полная стоимость в договоре. Звоните прямо сейчас! Просмотры возможны в любое время по предварительной договоренности!
Квартира в ЖК "Новое Горелово"
Десантника Вадима Чугунова б-р, 10/6
12 700 000
3 комнат. Общая площадь 77,0 м2. Этаж 13 из 15. Тип здания Монолит. Арт. 131570605 Покупайте светлую 3-комнатную квартиру для семьи в ЖК «Новое Горелово» (монолит 2021 г.п.)Почему здесь понравится детям и родителям:* 3 изолированные комнаты: гостиная + детская комната + спальня (16,6 + 14,4 +13,8 кв.м) позволит легко организовать личное пространство для детей и выделить зону отдыха для взрослых. * Кухня 12 кв.м с балконом: просторное место для семейных завтраков и ужинов. С балкона светит утреннее солнце - отличное начало дня для подзарядки хорошим настроением! * Два санузла и отдельная ванная комната позволят не стоять утром в очереди и быстро собраться на работу и в школу. Во втором санузле место позволяет установить при желании душевую кабину. * Двухсторонняя планировка – в квартире солнечно в течение всего дня, вид на восток и на запад (во двор). *Готовность к переезду «под ключ», можно сразу переехать и расставлять вещи, ремонт уже сделан, делали для себя. Остается кухня из массива дерева, встроенная техника и шкаф-купе – существенная экономия семейного бюджета.* Безопасность и спокойствие: всего 6 квартир на этаже – мало соседей, меньше шума; видеонаблюдение в лифтах и на территории с пультом охраны – можно спокойно отпускать детей гулять во дворе.* Отдых и развлечения: - Главный «магнит» для детей – огромный двор 4,5 га пространства, плей-хаб с игровыми комплексами, горками и качелями. – Велодорожки и спортивные тренажеры для активного отдыха. – Променад-аллея в скандинавском стиле для прогулок с коляской. * Все для комфорта мам и пап:Парковка: Даже поздним вечером всегда есть место для машины (редкость для спальных районов). Инфраструктура: Детский сад, современная Ново-Гореловская школа рядом, близко Инженерно-технологическая школа, аптеки, кафе, магазины Вкусвилл, Пятерочка, Магнит, остановка общественного транспорта, Яндекс-Маркет, МФЦ в шаговой доступности. Транспорт: Регулярные автобусы ходят до метро «проспект Ветеранов» (15 - 20 минут), на машине до КАД всего 1,5 км, до аэропорта Пулково 15-20 минут. По до
Продается 2к.кв.,
Большая Вруда д, Волосовский р-н
2 350 000
2 комнат. Общая площадь 45,7 м2. Этаж 4 из 5. Тип здания Панель. Арт. 131665338 B 85 км. от CПб в д. Большая Вруда ( Волосoвский pайoн ) пpодaётcя 2- комнатная квapтиpa нa 4- м этаже 5-этажногo панeльногo дoмa ( 1969 г.п. ) Oбщaя плoщaдь квapтиpы: 45,7 м2, площaдь комнат: 13,8+17,6 м2, комнаты смежные, СУР. Балкон застеклён, тёплый пол в прихожей кухне, стеклопакеты. В д. Большая Вруда pазвитa инфраструктуpа: дет. caд, школa, cетeвoй магазин, oтдeлeниe почты, банкa, ФАП, цeрковь и т.д. Прямое транспортное сообщение с г.Волосово, населёнными пунктами района. В пешей доступности грибные и ягодные леса.
Продается 1к.кв.,
Авиатриссы Зверевой ул, 3к2
5 690 000
1 комнат. Общая площадь 36,5 м2. Этаж 5 из 5. Тип здания Панель. Предлагается к продаже просторная 1 к кв УП в г Гатчине на ул Зверева д 3 к2 5/5 эт пн дома 1985 года постройки, ОП-36,5,комната 17,2м2 с выходом на застекленную,утепленную лоджию 1,2 м2,кухня 8,2м2,прихожая 4,9м2 с вместительной гардеробной 2,3м2- Вся инфраструктура в шаговой доступности. Рядом школа N5,детские сады, МФЦ, рынок, ТК Пилот, Гатчинский и Приоратский дворцы и парки, остановка автобуса №18 на Санкт-Петербург и городских автобусов, Балтийский вокзал, автостоянка. КВАРТИРА ПРОДАЕТСЯ В Прямой Продаже,1 взрослый собственник, более 20 - ти лет в собственности Арт. 131449952