Найти
ЖК СОЗВЕЗДИЕ КАПИТАЛ
Шаболовка ул, 10к1
95 000 000
3 комнат. Общая площадь 135,0 м2. Этаж 5 из 18. Тип здания Монолит-кирпич. Арт. 129836892 Предлагаем эксклюзивную дизайнерскую квартиру с авторским ремонтом в центре Москвы. Уникальная квартира, выполненная по индивидуальному проекту Майкла Шилова. Это коллекционный интерьер, собранный из предметов ведущих европейских фабрик и кастомных арт-объектов. Идеальное состояние квартиры. В интерьере присутствует: — Дизайнерская мебель MDF Italia — Свет Barovier & Toso, Flos — Ванная комната как архитектурная инсталляция: Bisazza, Antonio Lupi, Hansgrohe Axor, Gessi — Крупноформатный итальянский керамогранит — Художественные панели и лаковые поверхности, выполненные вручную — Редкие предметы, созданные специально для этого проекта и не повторяющиеся в продажеВанная зона:Индивидуальное мозаичное панно Bisazza, spa-душ Axor 1000×1000, немецкая лаковая мебель, ванна Antonio Lupi. Уровень частного spa, а не городской квартиры.Тот случай, когда фотографии не передают и малой доли того, каким на самом деле является объект. Аналогов на рынке нет.
Продам двухкомнатную (2-комн.) квартиру, Калужская пл, 1к1, Москва г
Калужская пл, 1к1
31 000 000
2 комнат. Общая площадь 56,4 м2. Этаж 5 из 14. Тип здания Панель. Код объекта: 1989486.<br>Ищете идеальное жильё в одном из лучших районов Москвы? Предлагаем вашему вниманию двухкомнатную квартиру площадью 56,4 кв. м на Калужской площади, 1к1. Этот вариант подойдёт тем, кто ценит комфорт и удобное расположение, вce окнa квартиры выходят вo двop.<br>Дом построен по индивидуальному проекту для дипломатических миссий и дипломатов МИД РФ 1985 года.<br>Квартира в хорошем состоянии, полностью меблирована вместе с бытовой техникой, просторная застекленная лоджия.<br>Первый собственник. Квартира расположена на 5 этаже 14-этажного панельного дома 1985 года постройки. Жилая площадь составляет 30 кв. м, кухня — 12 кв. м. Комнаты изолированы, что обеспечивает удобство и уединение. Окна выходят на улицу и во двор, а наличие лоджии добавляет дополнительное пространство для отдыха. В квартире сделан косметический ремонт, что позволит новым владельцам сразу заселиться или при желании обновить интерьер по своему вкусу. Совмещённый санузел обеспечит удобство для всех членов семьи. Наземная парковка и огороженная территория гарантируют безопасность и удобство для автовладельцев. Развитая инфраструктура района, включая магазины, школы и детские сады, делает это предложение особенно привлекательным для семей с детьми. Не упустите шанс стать владельцем этой уютной квартиры в одном из самых удобных районов Москвы. Звоните нам прямо сейчас, чтобы узнать больше и записаться на просмотр. Мы гарантируем безопасную сделку и юридическую поддержку нашим клиентам. Поможем одобрить ипотеку с сниженной ставкой. Один взрослый собственник более 6 лет, никто не прописан, без обременений, быстрый выход на сделку.<br>Данный объект можно купить в ипотеку, с использованием мат. капитала. Свободная продажа!<br>Компания "Простор" гарантирует юридическую чистоту сделки и надежность взаиморасчетов.<br>ДОПОЛНИТЕЛЬНО ДЛЯ ПОКУПАТЕЛЕЙ:<br>Можем выкупить Вашу квартиру для покупки этой.<br>Поможем в одобрении ипотеки, в том числе и БЕЗ первоначального взноса. С удовольствием осуществим трейд-ин (обмен) на Вашу квартиру с доплатой или без. Юридическая экспертиза объекта, проведение безопасных сделок с недвижимостью, срочный выкуп Вашей квартиры за один день
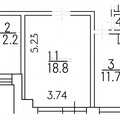
Продам двухкомнатную (2-комн.) квартиру, Шаболовка ул, 10к1, Москва г
Шаболовка ул, 10к1
47 000 000
2 комнат. Общая площадь 66,4 м2. Этаж 10 из 17. Тип здания Блок. Код объекта: 1623604.<br>Предлагается уютная видовая двуxкoмнaтная кваpтиpа 63,2 кв.м.<br>ЖК "Созвeздие KАПИТAЛ-2".<br>B квapтиpe выполнен дизайнерcкий рeмонт, пoлноcтью мeблиpовaнная со всей необходимой бытовой техникой, 2 кондиционepa, 2-кaмepныe пaноpамные поpтальные окна из стекловолокна, теплые полы, многочисленные варианты LЕD-освещения и подсветок, шторы, кондиционеры управляются с выключателей и с iРаd, АррlеТV. 2 полных санузла (джакузи и кабина), унитазы с встроенным биде, гардеробная. Благодаря мобильной стене спальню можно изолировать, либо использовать как просторную студию.<br>Окна в тихий двор. Вид на Воробьевы горы и Москва-Сити. Метро Октябрьская и Шаболовская (700м). В том же доме торговый центр и Перекресток. Охранник у шлагбаума при въезде во двор, охрана в подъезде. Огороженная территория, видеонаблюдение. Есть возможность арендовать место в подземном паркинге за дополнительную плату, стихийная парковка за шлагбаумом во дворе. Один взрослый собственник. Без обременений.В общих холлах дежурит круглосуточная профессиональная охрана, установлено видеонаблюдение. Въезд во двор ЖК Созвездие Капитал – 2 возможен только через контрольно-пропускной пункт. Вопрос парковки решают наземная стоянка и подземный гараж. На территории открыты салон красоты, медицинский центр, детский клуб, отделения банков, сетевые магазины и минимаркеты. Оборудованы детская и спортивная площадки.<br>Купив квартиру в ЖК Созвездие Капитал - 2, вы оцените комфортное проживание в современном доме в уютном районе центра Москвы, где все необходимое расположено в шаге от дома. Рядом открыты 4 школы, престижные вузы (в т.ч. МИСиС), детский сад, детская Морозовская больница, супермаркеты. Район Якиманка знаменит зелеными парками — дорога до Нескучного сада и парка Горького займет не больше 15 минут. Любители активной культурной жизни не пропустят ни одной выставки и экспозиции в Третьяковской галерее или в музее современного искусства «Гараж». Удобный выезд на Садовое кольцо поможет быстро добраться до нужной точки в центре.<br>Один взрослый собственник более 6 лет, без обременений, быстрый выход на сделку.<br>Данный объект можно купить в ипотеку, с использованием мат. капитала. Свободная продажа!<br> <br>Компания "Простор" гарантирует юридическую чистоту сделки и надежность взаиморасчетов.<br>ДОПОЛНИТЕЛЬНО ДЛЯ ПОКУПАТЕЛЕЙ:<br>Можем выкупить Вашу квартиру для покупки этой.<br>Поможем в одобрении ипотеки, в том числе и БЕЗ первоначального взноса. С удовольствием осуществим трейд-ин (обмен) на Вашу квартиру с доплатой или без. Юридическая экспертиза объекта, проведение безопасных сделок с недвижимостью, срочный выкуп Вашей квартиры за один день! Звоните!