ДВУХЭТАЖНЫЙ КОТТЕДЖ
Арт. 68586722 ДВУХЭТАЖНЫЙ КОТТЕДЖ.ОБЩАЯ ПЛОЩАДЬ 218,7 кв.м.
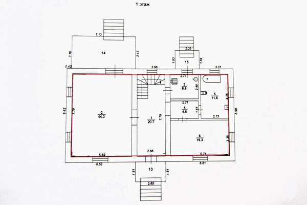
ПЛАНИРОВОЧНОЕ РЕШЕНИЕ:1-ый этаж:-Прихожая 20,7 кв.м.-Кухня-гостиная 44,3 кв.м.-Гостевая комната 19,3 кв.м.-Ванная комната 11,6 кв.м.-Котельная 6,6 кв.м.-Летняя терраса.2-ой этаж:-Большая спальная комната 32,5 кв.м.-Гардеробная 14,7 кв.м.-Спальная комната 21,3 кв.м.-Спальная комната 22,4 кв.м.-Ванная комната 6,4 кв.м.
ДОПОЛНИТЕЛЬНОЕ ОПИСАНИЕ:Дом построен из керамических блоков фирмы porotherm. Облицован немецким кирпичом.Крыша из мягкой кровли.Ремонт выполнен от дизайнера. При отделке использованы качественные, современные и дорогостоящие материалы. Стены отделаны в пастельных тонах - это создаёт уютное настроение в доме. На полу первого этажа итальянская плитка и подогреваемые полы. На втором этаже ламинат. Есть чердак - можно использовать дополнительно.Благоустроенный земельный участок 15 соток. Везде по территории высажены декоративные растения, газон, а на свободных участках плитка. Отдельно стоящая дровяная баня с комнатой отдыха и душевой (для бани отдельная скважина семьдесят метров).Парковочных места на четыре автомобиля. Навес для двух автомобилей с подсобным помещением. Имеется место под бассейн (выведен кабель + эскизный проект).На въезде автоматические ворота. Асфальтированный подъездной путь.
МЕСТОРАСПОЛОЖЕНИЕ:Деревня Новоподклетное, населённый пункт в составе Яменского сельского поселения Рамонского муниципального района Воронежской области. Элитный коттеджный посёлок расположен в окружении лесов. В пяти минутах от дома супермаркеты магнит и пятёрочка, а также турбаза Villa La Palma и озеро Глубокое, несколько церквей и часовня. Чуть дальше расположилась Яменская усадьба, где можно покататься на лошадях, хорошо провести время на природе и сходить в местный ресторан. В шести километрах пляж на реке Дон.Как и любой ближайший пригород, имеет хорошее транспортное обеспечение.С интервалом 10-15 минут до города Воронеж ходят маршрутные такси.
КОТТЕДЖ ПОЛНОСТЬЮ МЕБЛИРОВАН И ОСНАЩЕН ВСЕЙ НЕО















































































