Продажа дома в коттеджном поселке
Арт. 86489882 Продаются уютные жилые дома в живописном
коттеджном поселке у леса в Крыму!
Симферопольский район, центральная часть села Краснолесье. Современный и комфортный коттеджный поселок на 38 домов,
обеспеченный всеми необходимыми коммуникациями.
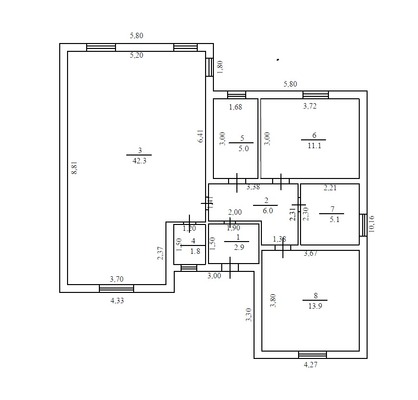
Жилой дом: 92,8/26/30 кв.м.две спальни: 11,1+13,9 кв.м.,
кухня гостиная: 42,3 кв.м.,
санузел: 5,1 кв.м.,
тех помещение-гардеробная: 4 кв.м.,
коридор и холл: 2,9+6 кв.м.
тех помещение: 5 кв.м.
кладовая: 1,8 кв.м.
веранда: 15 кв.м., с выходом с кухни гостиной
навес для двух машин под одной крышей с домом- приятный бонус.
В наличии шесть разных планировок,
с разными метражами от 92 до 160 кв.м.,
от 2-3-4 комнат.
Выбор за вами!
Земельный участок: 6 соток, каждый участок огорожен забором и благоустроен.
Дом построен: - дом из газосиликатных блоков с утеплением, декорирован под кирпич, - крыша из метало черепицы с утеплением,- стоки для воды, уходят в трубу, вместе с уличными водами, затопление не возможно,- к дому пристроен навес для двух авто: крыша металлочерепица,- забор на фундаменте, - большая веранда и входная группа – выложены керамо плиткой - веранда и навес для авто на железных стойках, при желании возможно остеклить- тропинки и зона навеса-выложены брусчаткой
В доме пред. чистовая отделка: - дом из газосиликатных блоков с утеплением, под декоративный кирпич- стяжка и штукатурка- качественные пластиковые окна- входная солидная дверь- натяжной белый матовый потолок- электро и сантех разводка- теплый пол в холле, в кухне гостиной и в санузле- в тех помещении установлен и подключен газовый котел, регулировка теплых полов- стены в тех помещении - выложены белой плиткой под потолок - пол теплый везде, кроме спален, в комнатах - батареи - белая плитка выложена на полу в холле и в кухне - гостиной - белый матовый натяжной потолок - качественные пластиковые окна - газовый котел- счетчики на газ и электричество
Мы возвели стены, подвели коммуникации и вывели идеальные плоскости. Ваша очередь — нап















































































