Новый дом в Краснолесье!
Арт. 87310763 Продажа жилого дома в Крыму, у леса, в предгорье!
Симферопольский район, центральная часть села Краснолесье, в современном и уютном коттеджном поселке на 45 домов.
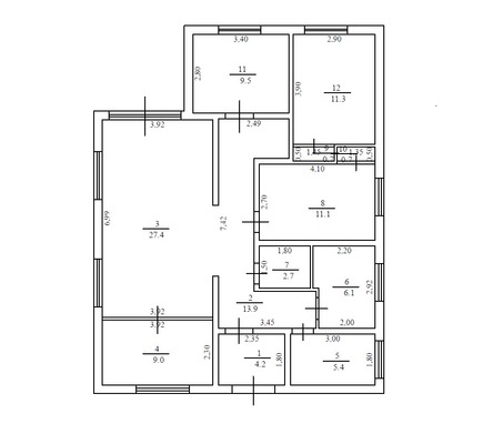
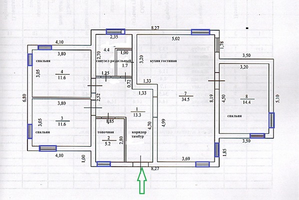
Жилой дом: 104,1/37,6/34,5 кв. м.· Три изолированные комнаты: 14,4 +11,6+11,6 кв. м.· Кухня гостиная: 34,5 кв.м.· С гостиной выход на веранду: 22,84 кв.м.· Санузел раздельный: 4,4+1,7 кв.м.· Тамбур: 13,3 кв.м.· Топочная: 5,2 кв.м.· Потолки: 3 метра.· Окна качественные, большие, много света и красивый вид из окон.Коттеджный посёлок построен в соответствии со всеми строительными нормами в едином архитектурном стиле.
Приятным бонусом - навес для двух авто под одной крышей с домом!
Земельный участок: 6 соток.Каждый участок огорожен забором.
На территории:- две улицы, три ряда домов, - на коттедж выделена своя электрическая подстанция, - интернет, - уличное освещение,- территория закрытая, огорожена, будет установлен дистанционный управляемый шлагбаум и камеры видеонаблюдения.- в ближайшее время планируются возведение детской игровой площадки с зоной отдыха, - работы по асфальтированию кольцевой дороги, одна улица уже за асфальтирована-двухполосная, с пешеходной тропинкой.- ведутся работы по озеленению территории.
В наличии шесть разных планировок, с разными метражами от 92 до 160 кв.м.от 2-3-4 комнат.Выбор за вами!
Коммуникации все в наличии, все подключены:- На коттеджный поселок своя ТП 150 кВт.- Электричество в доме: 5 кВт. - Газ центральный.- Отопление индивидуальное – газовый котел в доме. - Теплый пол в холле, санузле и в кухне гостиной; в комнатах батареи.- Канализация: у каждого дома своя яма – септик, одна яма два кольца и вторая переливная яма два кольца.- Вода у каждого дома своя личная скважина от 40-60 м, вода не верховая, вода питьевая. Отделка дома - наружная:- Дом из газосиликатных блоков, утеплен пенопластом 5 см. - Отделка декоративным кирпичом.- Крыша метало профиль.- Сейсмопояса.- Крыша утеплена минеральной ватой 5















































































