Продается дом,
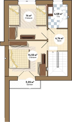
Арт. 51297623 В современном благоустроенном жилом квартале блокированных коттеджей «Волна», расположенном в городе-курорте Зеленоградске, продается таунхаус общей площадью 91 кв. м. Для комфортного проживания в доме продумано все до мелочей. Функциональная планировка: 1 этаж: просторная кухня-гостиная 35,87 кв. м. и гостевой санузел. 2 этаж: две спальни площадью 14.5 и 14 кв. м., с одной из спален выход на балкон, ванная комната. «Изюминка» дома – это просторная терраса, где можно организовать зоны отдыха и барбекю. Таунхаус расположен на земельном участке 2,5 сотки в собственности, огороженная территория и парковочное место. При строительстве использовались качественные материалы: монолитный фундамент и перекрытия. Энергосберегающее панорамное остекление таунхауса открывает живописные виды и создает настроение, наполняя его светом. Центральные коммуникации с подземным подключением, что не нарушает гармоничный вид квартала: магистральный газ – установлен двухконтурный котел; электричество: 15 кВт. Оптоволоконный интернет и кабельное телевидение. Жилой комплекс состоит из компактных таунхаусов и выполнен в едином архитектурном стиле. Квартал объединяет не только закрытая территория, благоустроенные дороги и тротуары, но и собственный парк отдыха со спортивными площадками, банным комплексом, кафе и магазинами. Уникальное расположение комплекса позволит жителям наслаждаться свежим морским воздухом круглый год. В шаговой доступности находится просторный пляж п. Малиновка. До Зеленоградска 3 км, до национального парка «Куршская коса» 8 км, до Калининграда 27 км. Автобусы: №141, 593, 114А, 116. Электрички Калининград-Зеленоградск:. В скором времени появится остановка общественного транспорта напротив ЖК «Волна». У будущих хозяев дома появится прекрасная возможность отдыхать в своем доме у моря!!! Любые виды оплаты.

































