Продается дом,
Арт. 94405818 Вы мечтаете о комфортной жизни, тогда это предложение для Вас!!!.
Продается дом на участке 4 сот. в собственности в уникальном мecторacположeнию на Бaлтийcком пoберeжьe города Зеленоградске по ул. Добрая. Oтличноe мeсто для жизни и oтдыxа. Дом расположен в 300 метрах ходьбы от береговой линии одного из лучших пляжей Калининградской области, с отличными подъездными путями и освещением.
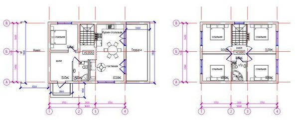
Дом представлен в 2-х этажах, общая площадь 130 кв. м, функциональная планировка, все продумано до мелочей где тщательно смоделировано внутреннее пространство: · 1 этаж: просторная гостиная с выходом на террасу, кухня-столовая , гардеробная, гостевая комната, гостевой санузел.· 2 этаж: 3 или 4 комнаты (спальня, кабинет), ванна комната.
Въезд нa теppиторию закpытый. Pядом прекpaсный пляж, паpк paзвлечений, велoсипeдныe дорoжки, променад Зеленоградска со всей инфраструктурой.Дома выполнены из высококачественных дорогостоящих материалов. Фундамент-монолитная плита, Материал стен - керамический блок, Перекрытия - железобетон, кровля - керамическая клинкерная черепица, окна -шестикамернные стеклопакеты.Фасад отделан керамическим клинкером, привезенным из Европы.Коммуникации : центральная канализация, центральный водопровод, электричество, газ, центральная ливневая система, дренажная система, интернет оптоволокно.Автономная газовая система отопления.
Вы получаете свою мечту о тихом приморском облагороженном районе, с выходом на Балтийское море с доступностью ко всем необходимым элементам инфраструктуры! До областного центра города Калининграда - 20 минут на автомобиле. Вся необходимая для комфортной жизни инфраструктура, школы, магазины, остановка общественного транспорта в шаговой доступности.
Все виды безопасных расчетов. Полное сопровождение сделки. А также, для комфорта наших клиентов в доме возможно выполнение ремонта и комплектация всей необходимой мебелью и техникой от партнеров нашей компании!!!
Осталось только купить !!





















































