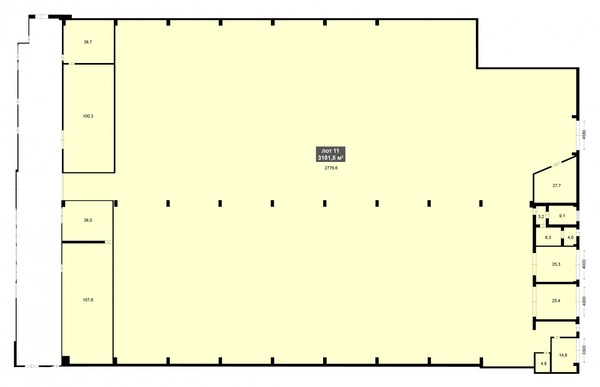
Предлагается в покупку нежилое помещение, склад общей площадью 3181.8 м2 по адресу: шоссе Энтузиастов, 2 стр. 12, рядом с северо-восточной хордой, связывающей три округа Москвы: север, восток и юго-восток, в пешей доступности от станции метро шоссе Энтузиастов.
Склад располагается в офисно-складском комплексе в престижном районепервый этаж
потолки от 11 до 12 м
въезд внутрь помещения для большегрузных машин и длинномеров
доступ 24/7
теплый склад с антипылевыми полами
склад действующий, есть арендаторы.
наземная парковка.
близость к основным транспортным развязкам.
шаговая доступность от метро
возможность добраться без светофоров в любой район города
центральные коммуникации
круглосуточное наблюдение и охрана
Помещения свободного назначения подходят для складирования, а также под производство. Общая площадь и размеры обсуждаются индивидуально. В наличии мощная электросеть — 4000 кВт, что позволяет подключать современное оборудование.
Также есть городская канализация и все необходимые коммуникации, что обеспечивает комфортное и эффективное использование пространства.
Идеальное решение для компаний, ищущих удобное и оснащённое помещение недалеко от транспортных магистралей.
Есть возможность приобретения помещения от 800 м2 (помещение 3 на плане).Земельный участок 24115 м2 в аренде на 25 лет до 2030 года с последующей пролонгацией.
Продажа с НДС.Быстрый выход на сделку. Готовы предложить юридическое оформление и сопровождение сделки.Звоните, записывайтесь на показ.Рады ответить на ваши вопросы с 9:00 до 21:00 часа.
Арт. 116518381




