Дом 161,4 кв.м. на участке 12 сот
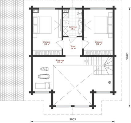
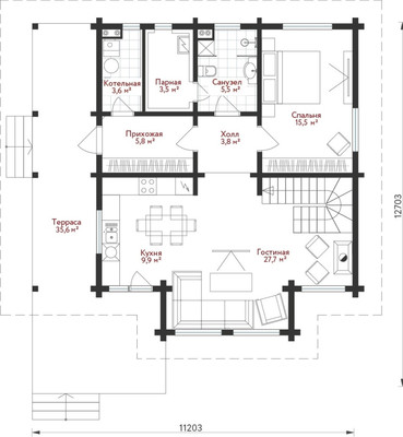
Арт. 112896068 Продается двухэтажный дом 161,4 м2 Площадь дома 125,8м2Площадь террасы 25,6м2Площадь 1 этажа 75,3м2Площадь 2 этажа 50,5м2Клееный брус 205*230ммФундамент- монолитная ж/б плита 200мм с верхним ростверком и жб сваями под террасы/ балконыКраски Teknos Кровля ЦПЧ, утепление базальтовой ватой Paroc Extra 250 мм с перекрытием "мостиков холода" и кровельные мембраны Corotop Active Control Подшивка свесов крашеной доской Металлическая водосточная система Grand Line Снегозадержание PRESTIGE ZN 45*25 (овал) натур. RAL9005 3 м Окна двухкамерные стеклопакеты Veka softline 70 мм Финская входная дверь Jeld-WenСделана разводка эл-ва, на первом этаже проложен тёплый пол.
Дом без внутренней отделкиЗемельный участок ИЖС 12 соток, ровный, сухой.По периметру установлен забор.Магистральных газ подведен к участку.Эл-во 15 кВтПоселковая скважинаНа участке выполнена фундаментная плита с выводом коммуникаций под баню.КП "Савоя"Круглосуточный контроль доступа с постом охраны.Забор по границе посёлка.Широкие дороги. Уличное освещение. Детская площадка.
Инфраструктура:До метро Парнас 26 мин на машине.До автобусной остановки 20 мин пешком.Школа Агалатово и Вартемяги 10 мин на машине.Детский сад в Агалатово. Амбулатория Вартемяги 10 мин на машине.В пешей доступности Магнит и Пятёрочка.







































