Продается дом,
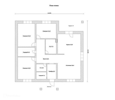
Арт. 114336961 Предлагается к продаже готовый дом в д. Малое Козино из керамического кирпича с черновой отделкой. Преимущества покупки дома : * категория земли - земли населённых пунктов * расположен в живописном месте на высоком берегу Волги *удобные подъездные пути *близость к Н. Новгороду * ровный участок 10 соток *функциональная планировка: общая площадь- 128,2 кв. м, большая кухня 18 кв. м, 4 просторные комнаты, два санузла, гардеробная, котельная *мягкая кровля, окна из качественного ПВХ *к дому пристроена терраса * электрические мощности - 10 кВт, вода - собственная скважина, канализация- септик *отопление газовое. Быстрый выход на сделку, полное сопровождение. Одобрим под семейную ипотеку. Звоните, покажем в удобное для Вас время! Возможна организация отделки " под ключ".Привлекательная цена- 9 млн. Дом построен и готов к эксплуатации.Адрес дома рп. Малое Козино, тер. Волжская пойма , строение 5/7






















 
  
  
 