Дом в п. Березовом
Арт. 114070592 Продаётся качественный, надёжный дом в СТ «Радуга», п. Берёзовый — построен для себя, с соблюдением всех технологий и инженерных норм!Перед строительством проведено геологическое исследование, чтобы определить оптимальную глубину свай — фундамент свайно-ростверковый, сваи диаметром 350 мм, глубиной 3 м, с армированием в четыре стержня.
Ростверк 600×400 мм, арматура 12 мм. Сверху выполнена армированная плита толщиной 150 мм с ячейкой 20×20 (арматура 10 мм).
Стены из газоблока D500 толщиной 250 мм, с вентиляционным зазором и облицовкой Воротынским кирпичом.
Все перемычки над окнами и дверьми — бетонные, с армированием, в местах примыкания бетона установлен утеплитель. Армопояс выполнен строго по проекту нагрузок.
Кровля из металлопрофиля толщиной 0,45+ мм.
Коммуникации:Скважина 58 м — чистая, стабильная вода.
Септик, рассчитанный на постоянное проживание.
Прямой договор с НЭСК (электроснабжение).
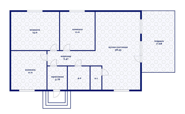
Планировка:Три изолированные комнаты и огромная кухня-гостиная с выходом на уютную террасу — отличное решение для семьи.
Асфальтированный подъезд, свежий воздух и комфорт загородной жизни при близости к городу.Звоните, чтобы узнать больше и записаться на просмотр — этот дом действительно заслуживает внимания!































