Продается дом,
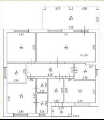
Арт. 128686428 Продажа на прямую от ЗАСТРОЙЩИКА. Цена дома указана с учетом участка 10 соток в КП Гринвуд Сокуры.Дом одноэтажный 142 квм в предчистовой отделке. Удобная планировка дома для комфортного проживания. Планировка прилагается: кухня-гостинная, хол, котельная, санузел, 3 спальни, входная группа, крыльцо. По всему дому теплые полы. Проведено отопление, установлены радиаторы, газовый котел. Сдается со всеми подключенными коммуникациями: газ, свет, вода (своя скважина), канализация. Дом соответствует всем стандартам СНиП и ГОСТ.Проходит по программам: Семейная ипотека, сельская ипотека, Гос.поддержка.Можем организовать просмотр ежедневно 7 дней в неделю. Покажем все готовые дома, расскажем о строящихся. Гарантия 5 лет от застройщика.Звоните прямо сейчас и откройте двери в ваше новое будущее.





