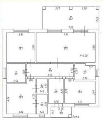
Продается дом,
Арт. 128684391 ПРОДАЖА НАПРЯМУЮ ОТ ЗАСТРОЙЩИКА!!!Продается дом 142 м2 в предчистовой отделке, на участке 10 соток в КП Гринвуд СокурыДом возведен из качественных строительных материалов по всем стандартам СНиП и ГОСТ, построен на совесть - приезжайте и убедитесь самиСдается со всеми подключенными коммуникациями (свет, газ, вода)Не упустите возможность стать обладателем этого прекрасного дома, который станет идеальным местом вашей семьи и для начала новой жизни. Осмотр участка: Ежедневно, 7 дней с неделю.Покажем все готовые дома, расскажем о строящихся.Проконсультируем по ипотекеГарантия 5 лет от застройщика
Охраняемая территория
Огороженная территория
Круглогодичный доступ
Телефон
Интернет
Спутниковое / Кабельное ТВ
Гараж
Баня / Сауна
Бассейн
Бойлер
Мансарда
Возможна прописка
Лес
Терраса
Погреб
Душ
Водоем







